
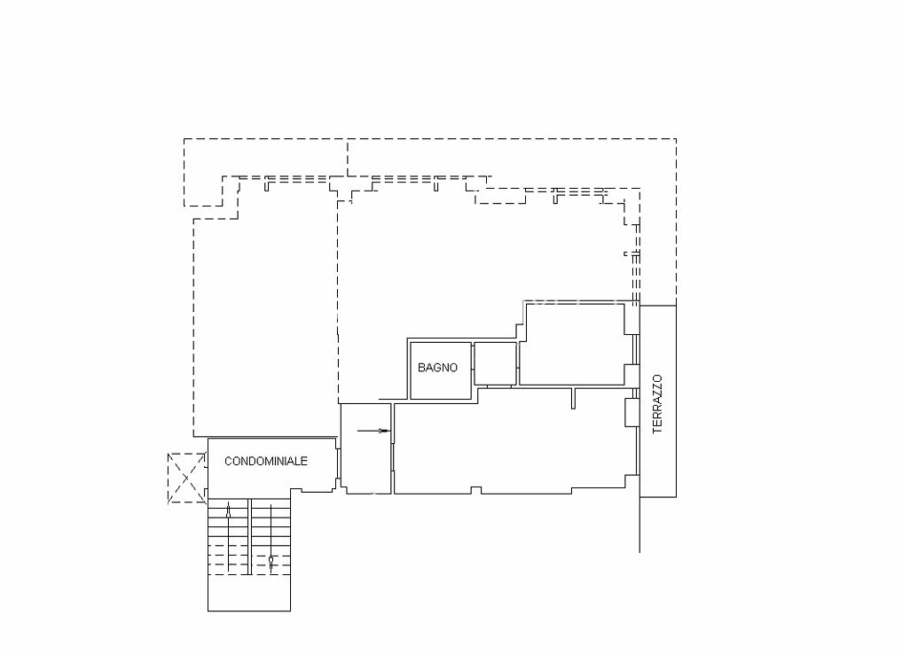
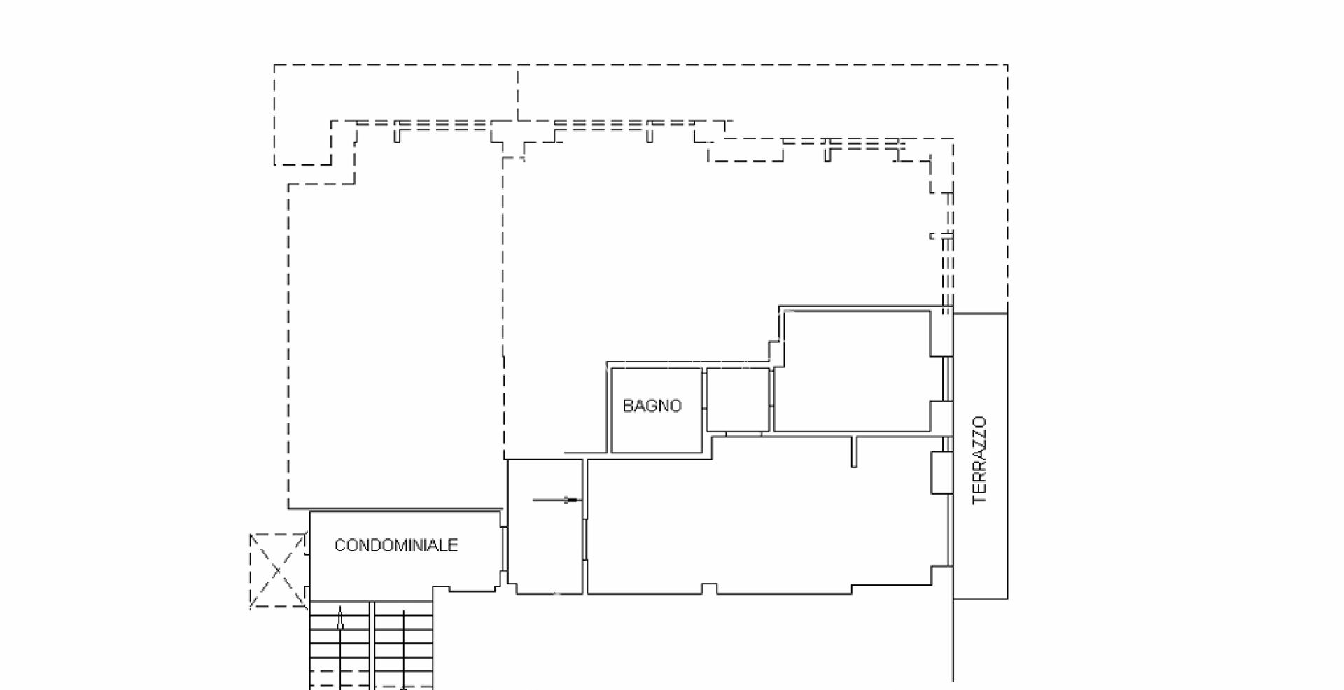
À quelques pas du Casino, dans une résidence de standing avec service de conciergerie, nous proposons à la vente un lumineux deux-pièces situé au 3ᵉ étage avec ascenseur. L’appartement, en bon état, se compose d’une entrée, séjour avec coin cuisine donnant accès à la terrasse, chambre et salle de bains.
Grâce à sa position stratégique et à la forte demande locative dans le secteur, la propriété est également idéale comme investissement.
Référence
Type de propriété
Chambres à coucher
Salles de bain
Surface (mq)
