
Attique prestigieux avec vue sur la mer.
Situé dans l'un des quartiers les plus exclusifs de Sanremo, sur le Corso Inglesi, cet attique prestigieux est le choix parfait pour ceux qui recherchent l'élégance, le confort et une vue imprenable. L'appartement, récemment rénové avec des finitions de très haute qualité, offre une combinaison parfaite de style et de fonctionnalité.
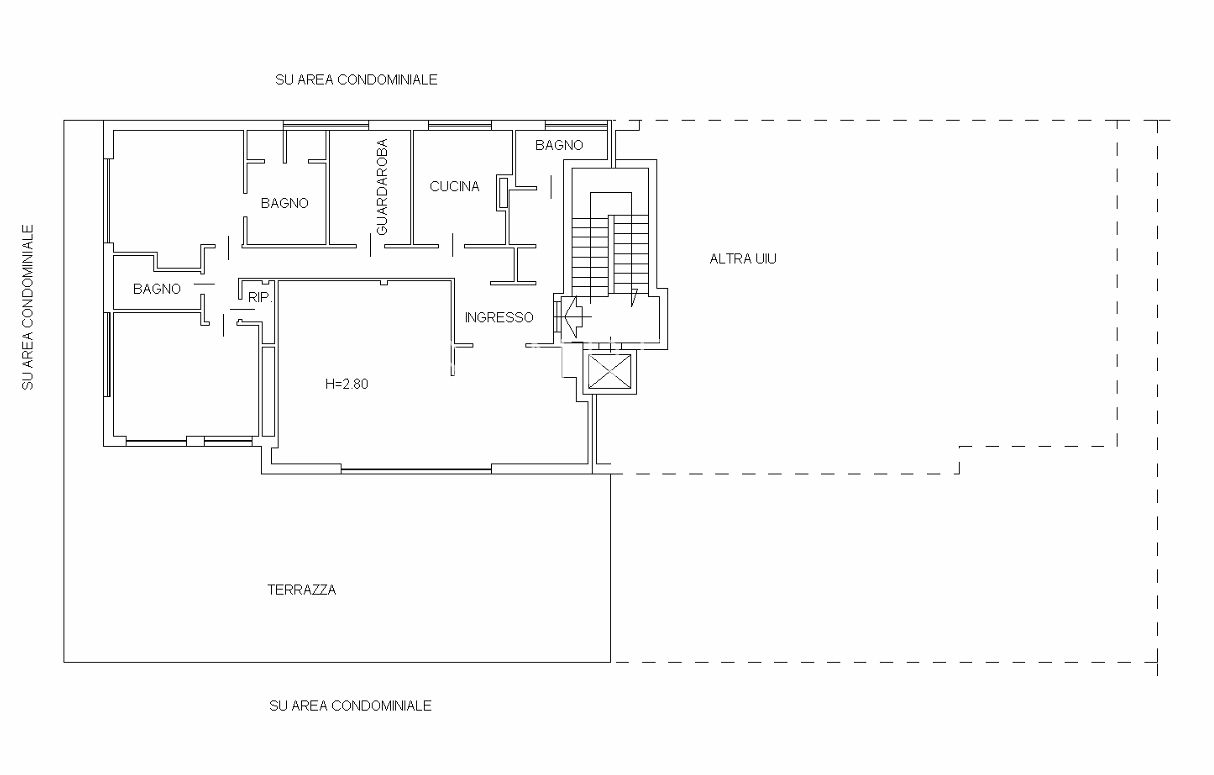
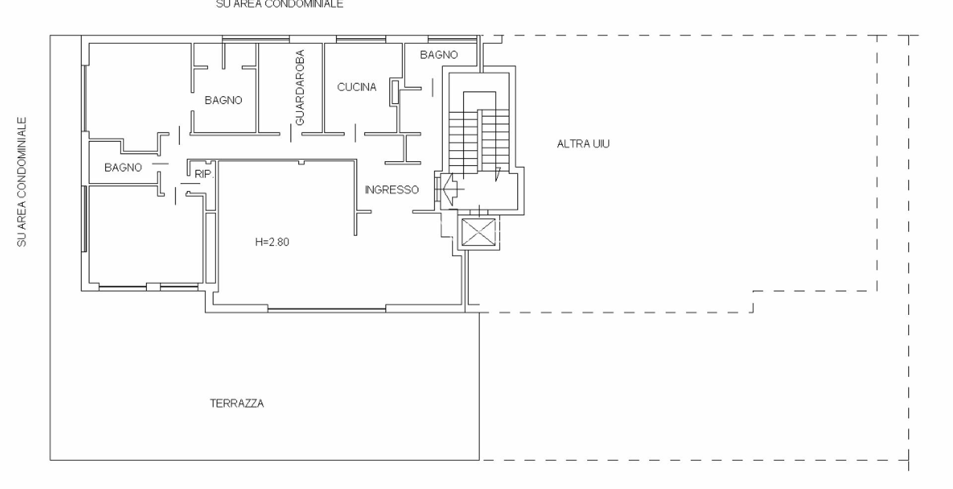
L'immobilier s'étend sur plus de 150 m² et bénéficie de grandes fenêtres qui baignent les espaces de lumière naturelle. La superbe terrasse panoramique d'environ 100 m², idéale pour profiter de moments de détente en plein air, offre une vue incomparable sur la mer et sur toute la ville.
L'intérieur se compose de 3 chambres à coucher, de 2 salles de bains élégantes et d'un petit espace buanderie. Le salon, spacieux et lumineux, est idéal pour des moments conviviaux, avec une cuisine séparée, raffinée et fonctionnelle.
L'ensemble de l'appartement est équipé d'un système de diffusion sonore dans chaque pièce, garantissant une atmosphère élégante dans tous les coins de la maison.
La propriété comprend également un garage privé, offrant confort et sécurité dans l'un des quartiers les plus recherchés de Sanremo.
Une occasion rare pour ceux qui souhaitent un bien exclusif, dans un emplacement central mais calme, avec toutes les commodités modernes et une vue sans pareil.
Vendu
Référence
Type de propriété
Chambres à coucher
Salles de bain
Surface (mq)
