
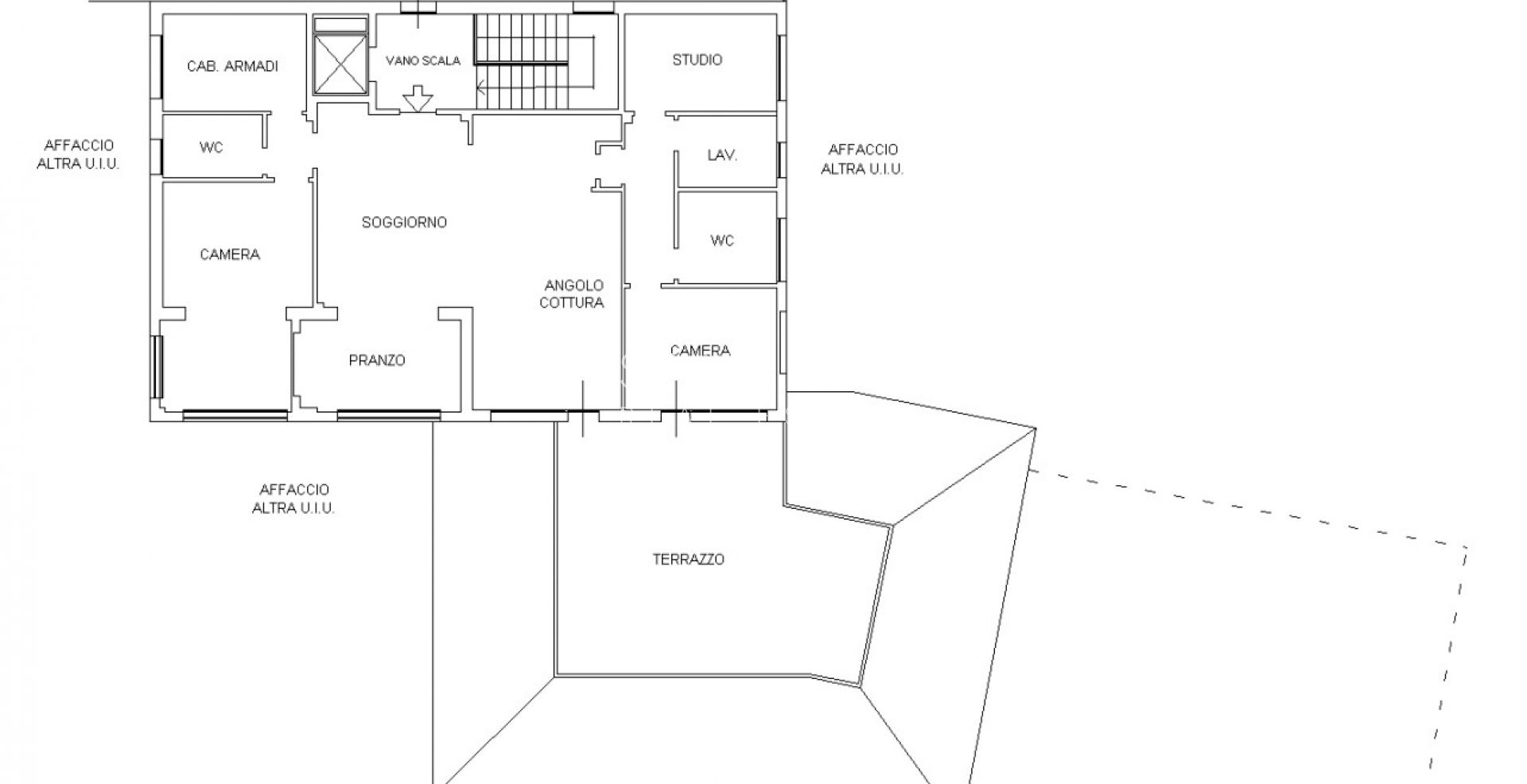
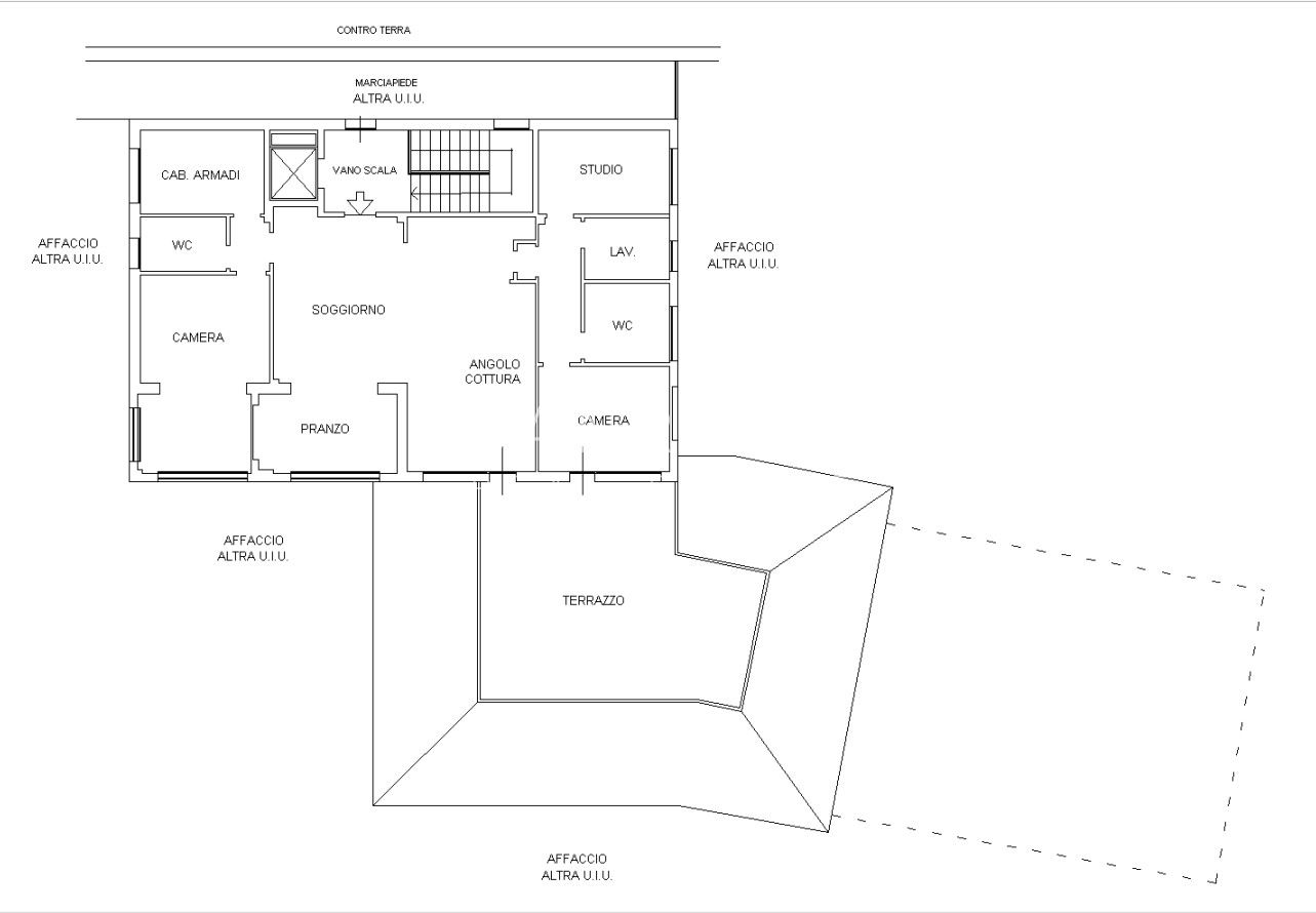
Penthouse avec vue directe sur la mer, occupant tout l’étage, situé dans un immeuble composé de seulement deux appartements.
La propriété, d’une superficie d’environ 140 m², se compose actuellement d’une vaste entrée ouvrant sur un lumineux séjour avec cuisine ouverte.
Sur le côté ouest se trouve la chambre principale avec salle de bains privative avec fenêtre et un grand dressing, le tout offrant une superbe vue sur la mer.
Au-delà du salon, on accède à un autre espace nuit comprenant deux chambres, une deuxième salle de bains avec fenêtre et une buanderie.
L’atout majeur de ce bien est sans aucun doute la grande terrasse surplombant la plage en contrebas, où la propriété dispose également d’une cabine de plage.
Une place de stationnement privée complète ce bien d’exception.
Référence
Type de propriété
Chambres à coucher
Salles de bain
Surface (mq)
