
Dans le quartier de Solaro, dans une position calme et paisible, nous proposons à la vente une maison individuelle de 184 m² sur deux niveaux, avec un grand jardin où il est possible de réaliser une agréable piscine.
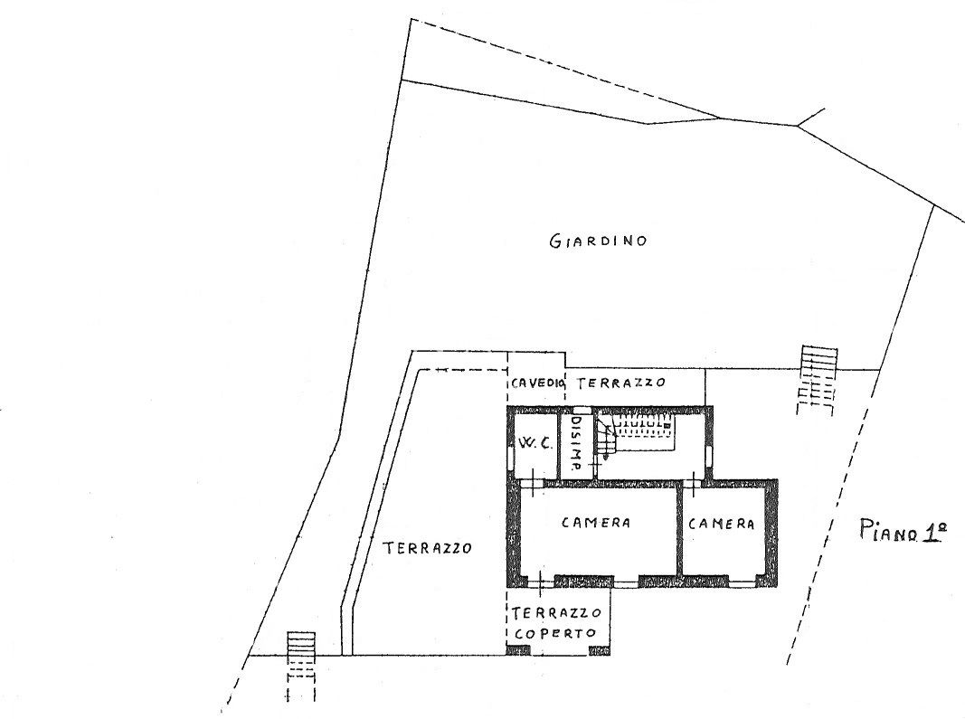
Au rez-de-chaussée, une entrée mène à un séjour lumineux agrémenté de grandes baies vitrées, une spacieuse cuisine ouverte, une salle de bains, un porche et un grand jardin privé avec des arbres fruitiers, idéal pour ceux qui souhaitent profiter des espaces extérieurs.Un escalier intérieur mène à l’étage supérieur, dédié à l’espace nuit, composé de deux chambres doubles, une salle de bains, un dégagement et une grande terrasse avec vue dégagée sur la verdure et un aperçu de la mer.
Afin d’être pleinement valorisée, la propriété nécessite des travaux de rénovation, qui permettraient également une augmentation de la surface constructible tout en mettant en valeur ses caractéristiques existantes.
Référence
Type de propriété
Chambres à coucher
Salles de bain
Surface (mq)
