
Terrain exclusif avec projet approuvé et vue mer.
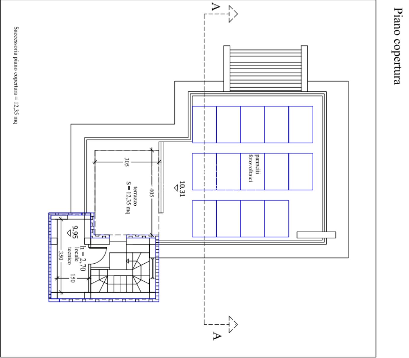
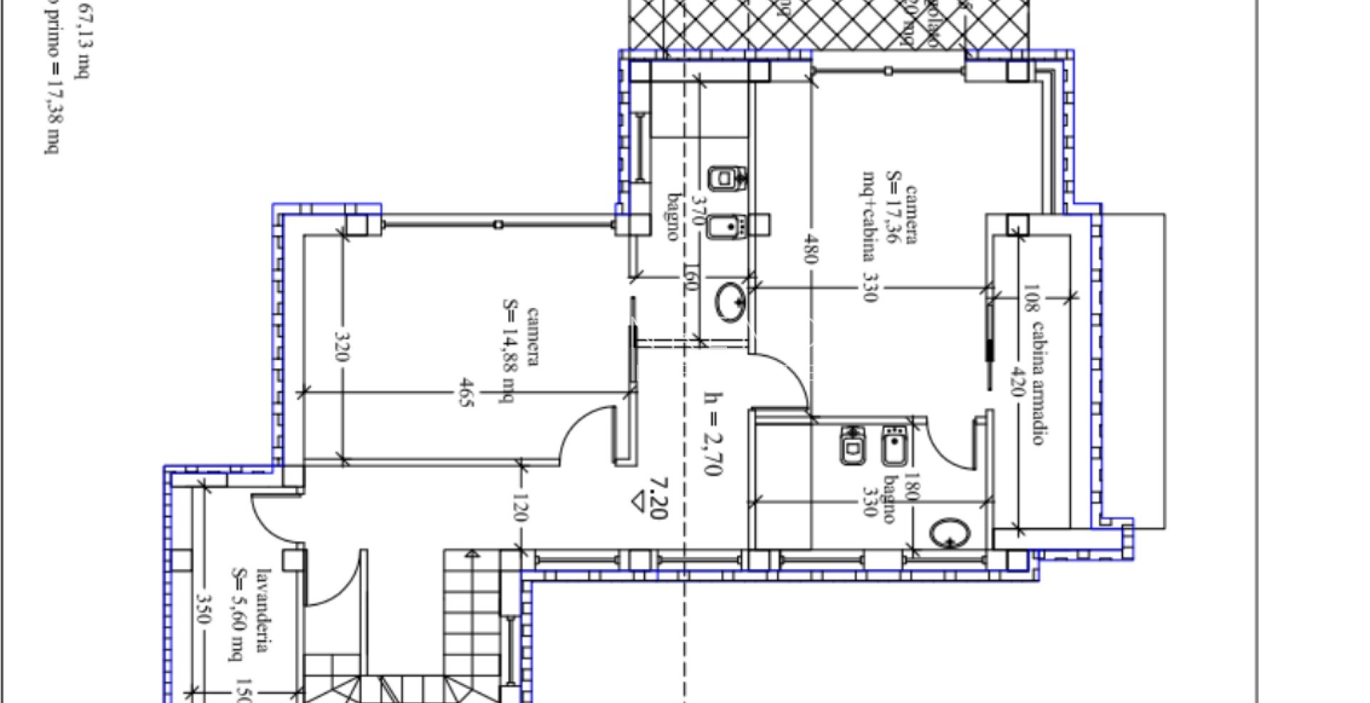
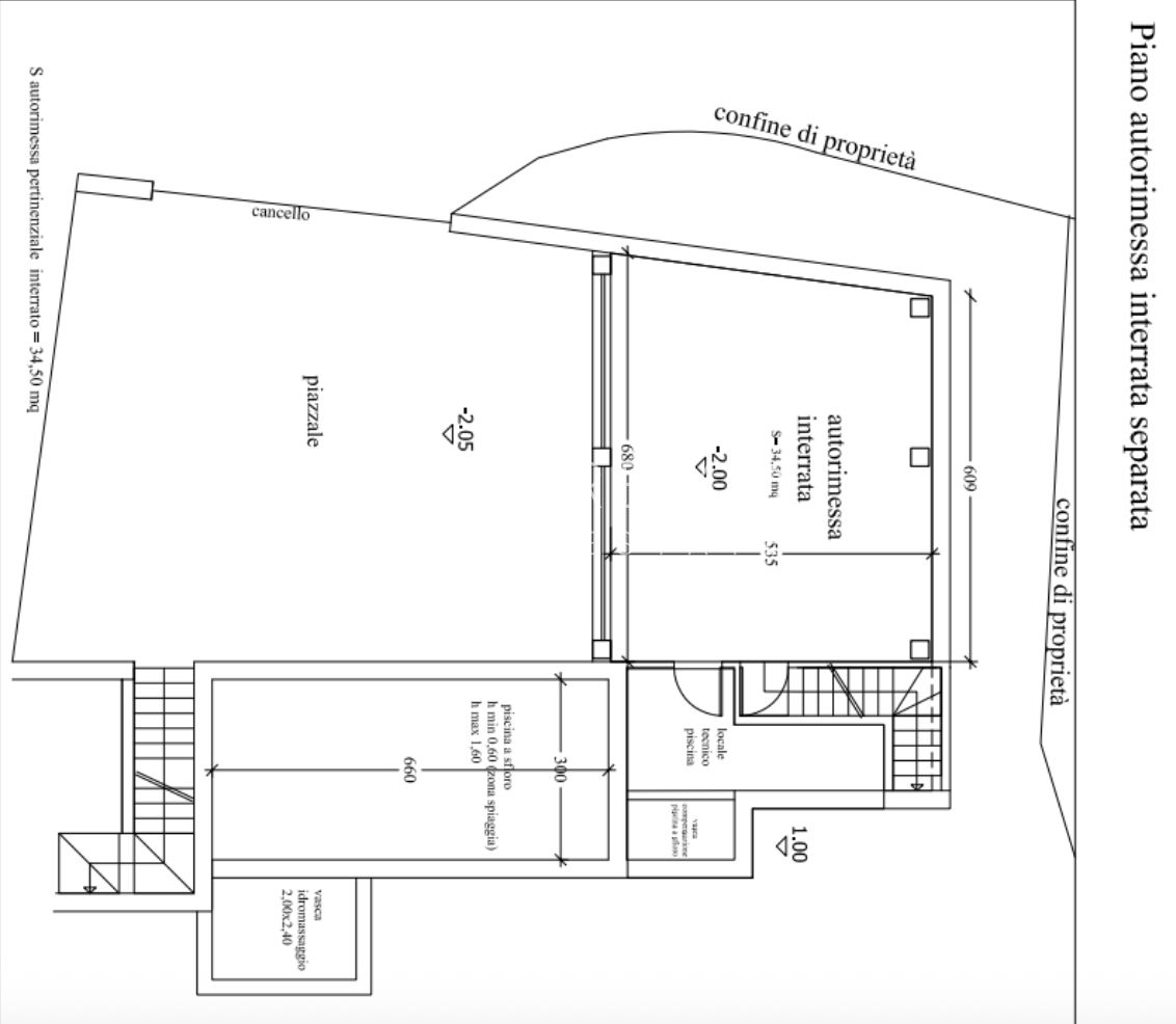
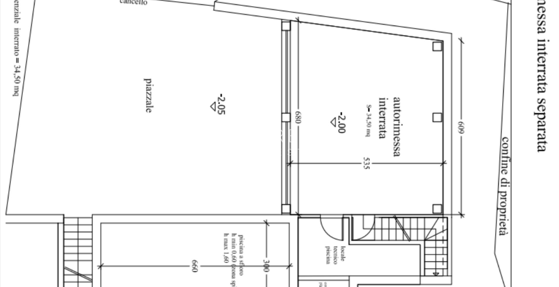
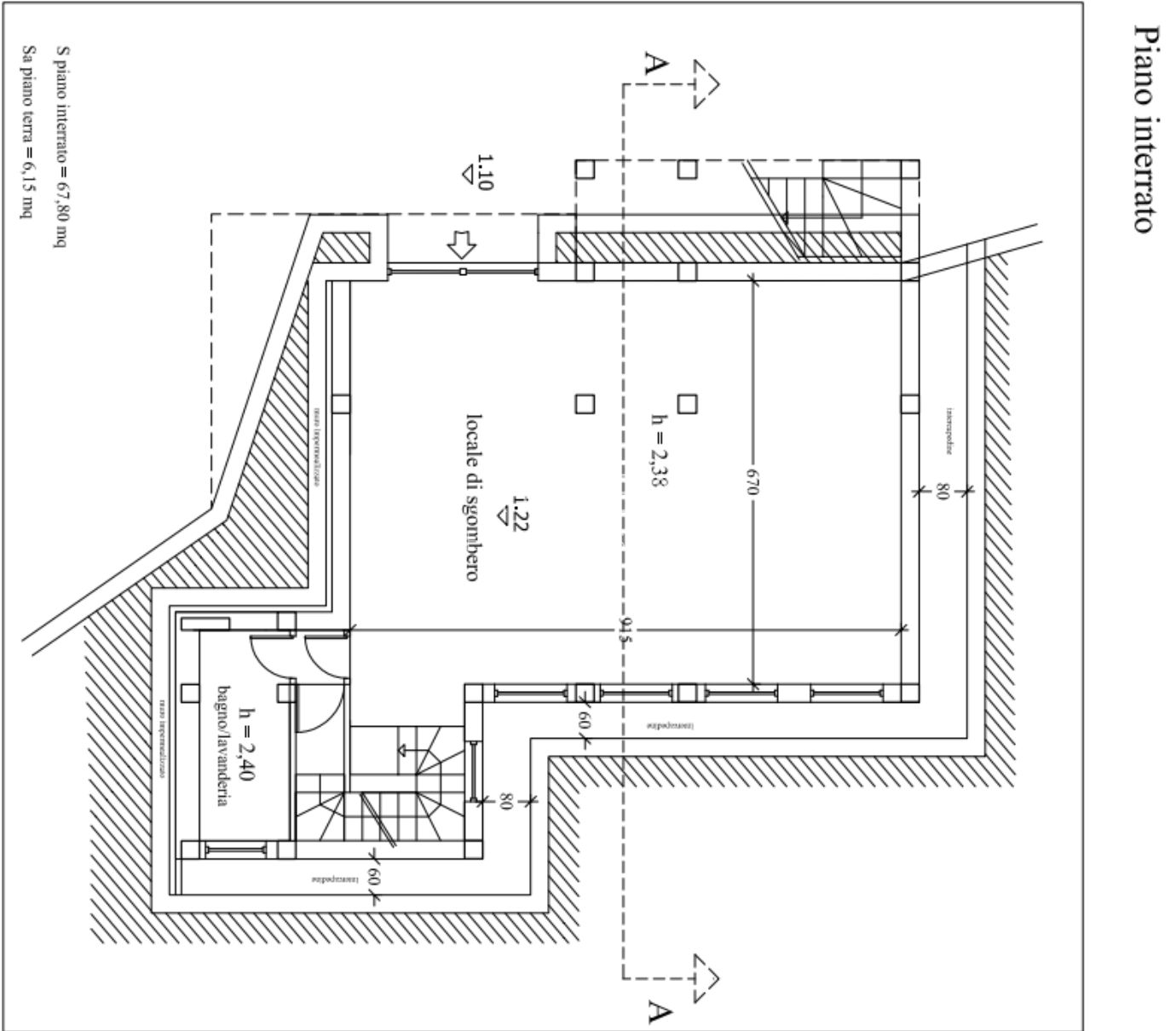
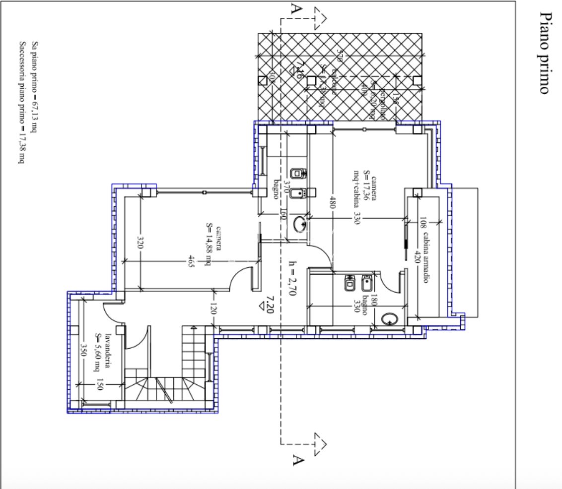
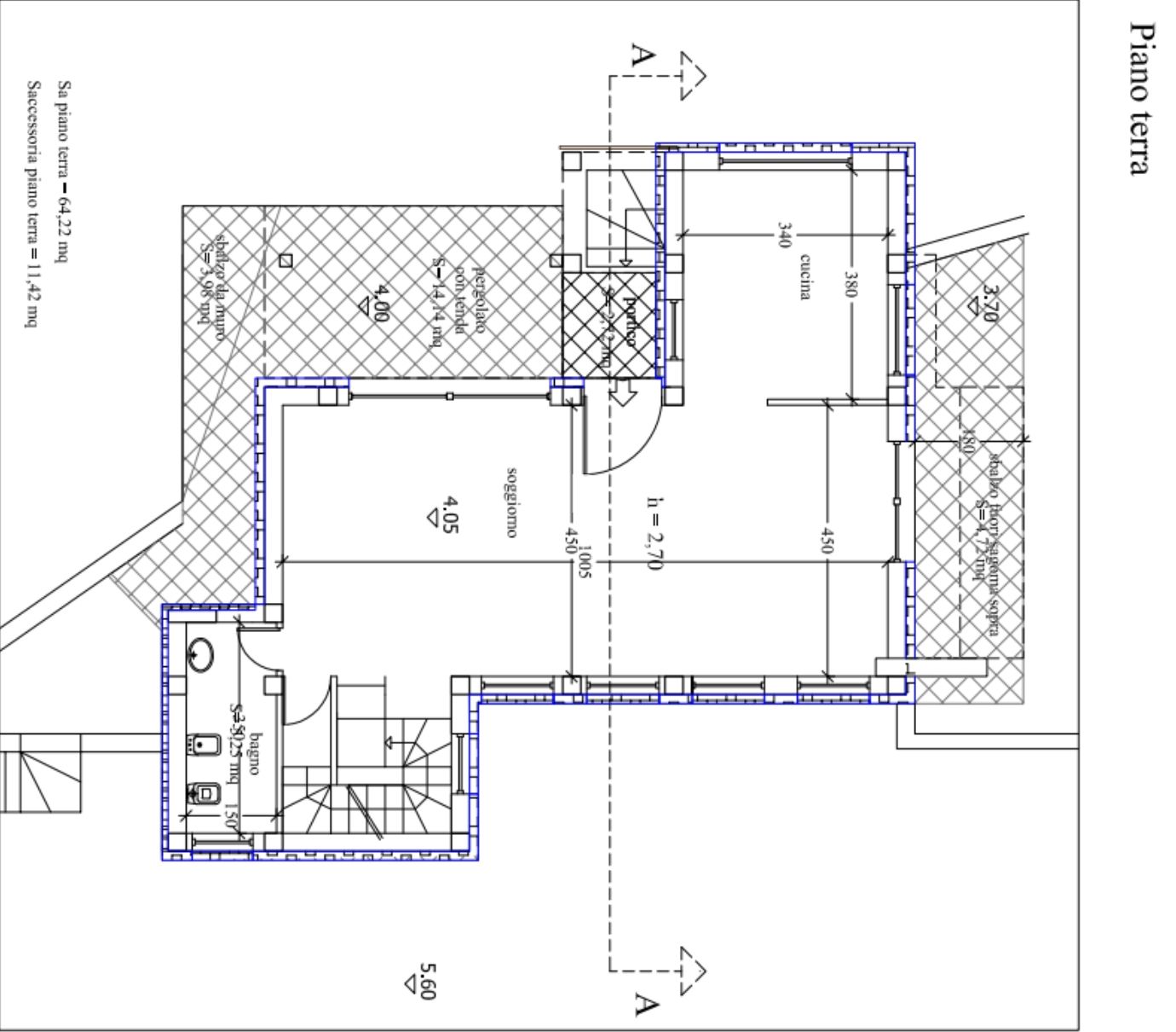
Dans un emplacement privilégié, à seulement 200 mètres de la célèbre piste cyclable et des plages enchanteuses de Tre Ponti, nous proposons à la vente un terrain prestigieux avec un projet approuvé pour la construction d'une villa de luxe sur deux niveaux, d'une surface totale d'environ 150 m², en plus des espaces extérieurs comprenant terrasses et jardin.
Le terrain, où est prévue la réalisation d'une magnifique piscine à débordement, bénéficie d'une vue mer panoramique totale, offrant des paysages uniques et des couchers de soleil inoubliables — l’endroit idéal pour créer une oasis exclusive de détente, en harmonie avec la beauté du paysage environnant.
Son exposition plein sud garantit une luminosité exceptionnelle tout au long de la journée, mettant en valeur les espaces intérieurs et extérieurs.
Une opportunité rare et exceptionnelle pour ceux qui souhaitent construire une résidence de prestige dans l’un des endroits les plus prisés de la Riviera ligure.
Référence
Type de propriété
Chambres à coucher
Salles de bain
Surface (mq)
